
Asilo nido – Trieste
Demolizione di una struttura scolastica in disuso e realizzazione di un asilo nido
La nuova struttura prevede l'impiego di materiali biocompatibili, privilegiando quelli naturali ed ecologici, adottando tecnologie costruttive i cui componenti sono sottoponibili, a fine vita, a demolizione selettiva per essere riciclati o riutilizzabili e relativa impiantistica performante ed eco-sostenibile.
Con l’intervento proposto verranno creati 66 nuovi posti per il nido dell’infanzia, divisi tra lattanti (3 mesi – 12 mesi) in numero pari a 23, e medio-grandi (12 mesi – 36 mesi) in numero pari a 43. La progettazione in oggetto si sostanzia grazie al fondo PNRR – Componente 1 – Potenziamento dell’offerta dei servizi d’istruzione: dagli asili nido all’Università – Investimento 1.1: Piano per asili nido e scuole dell’infanzia e servizi di educazione e cura per la prima infanzia.
Assonometria

Assonometria piano terra


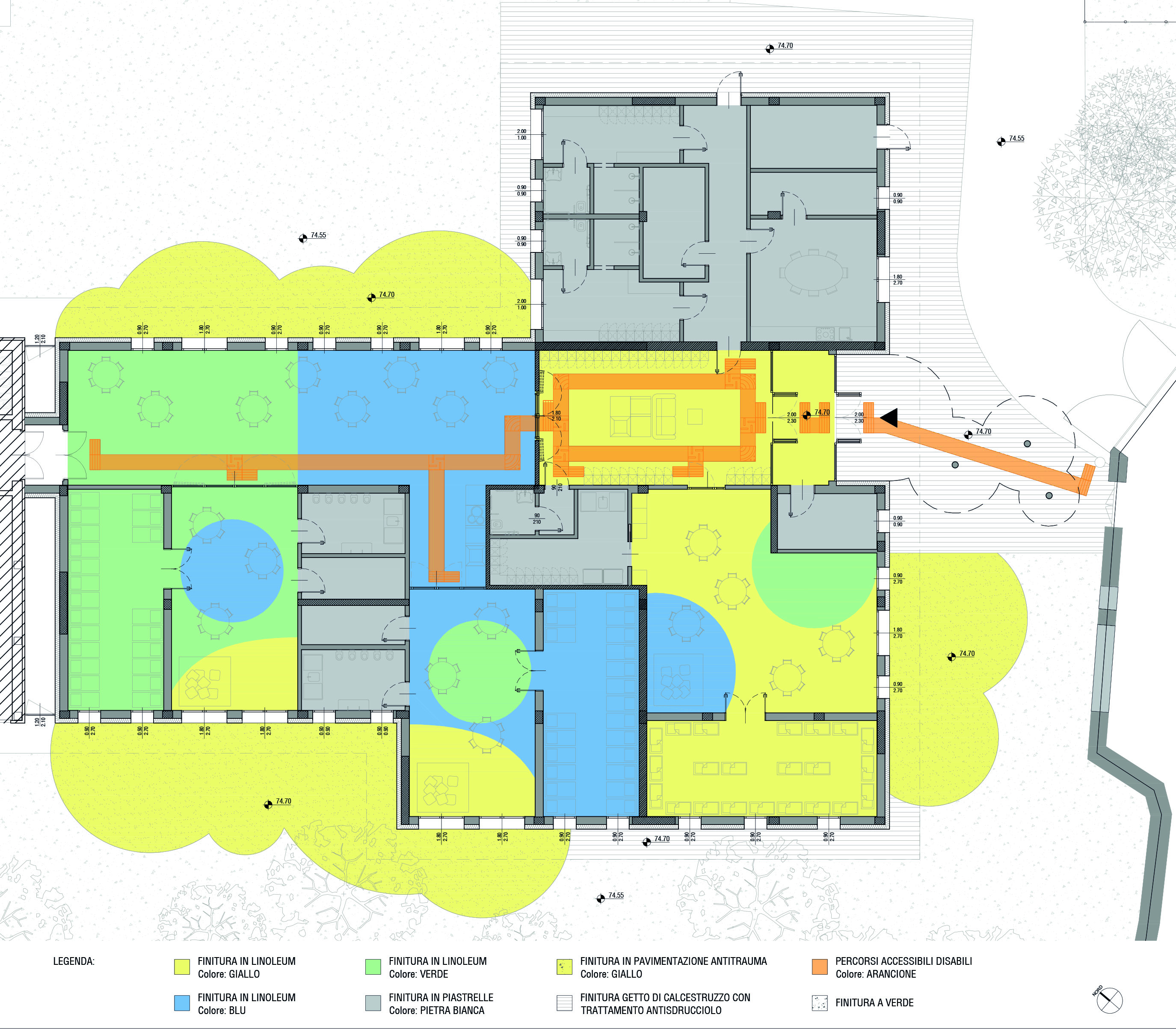
Pianta piano terra
Asilo nido – Trieste
Macrodiscipline
Ingegneria
BIM
Cliente
Comune di Trieste
Ambito
Istruzione e Ricerca
Anno
2023-2024
Dimensioni
610 mq
Piani
1
Località
Trieste
Servizi
Progetto di fattibilità tecnico-economica, Progetto esecutivo
Stato
Complete
Importo
1.711.838,89
Galleria progetto
Altri progetti






