
Casa della Comunità e Ospedale della Comunità - Melegnano (MI)
Realizzazione della Casa della Comunità e dell’Ospedale della Comunità nella città di Melegnano
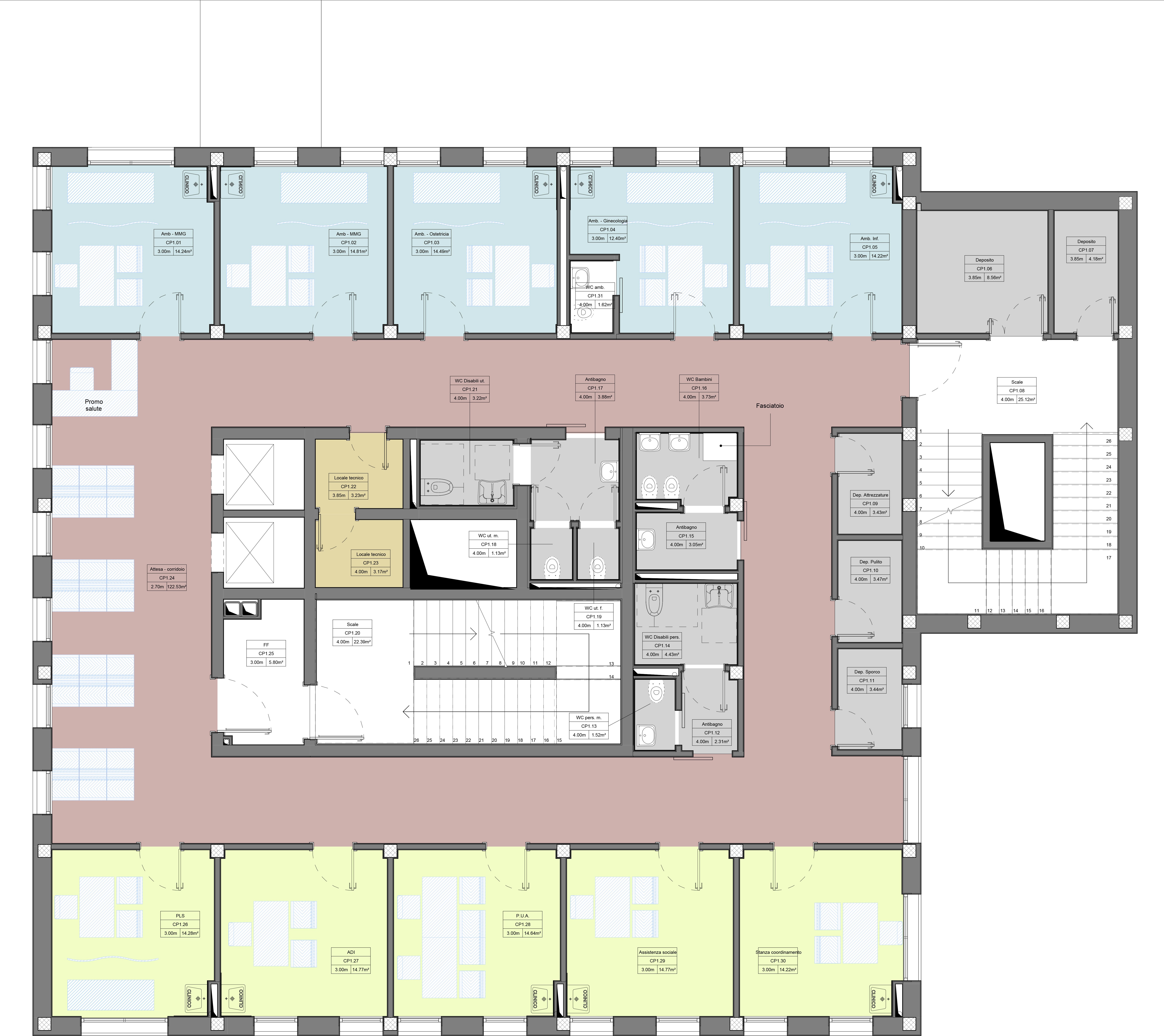
Il progetto rappresenta un modello innovativo di architettura sanitaria, capace di integrare efficienza funzionale, flessibilità degli spazi e comfort ambientale. Situata in un’area strategica di Melegnano, la struttura si compone di due blocchi interconnessi al piano terra: l’Ospedale di Comunità (Blocco A), sviluppato su un unico livello, e la Casa della Comunità (Blocco B), distribuita su tre piani.
Pensata come punto di riferimento continuativo per il territorio, la struttura ospita equipe multidisciplinari per garantire assistenza primaria, attività di prevenzione e supporto specialistico, ponendo al centro il benessere del paziente e del personale sanitario. Un’architettura al servizio delle persone, capace di adattarsi nel tempo alle esigenze della comunità che la abiterà.
Planivolumetrico

Modularità e Flessibilità degli Spazi
Ogni ambiente è stato concepito per adattarsi nel tempo a diverse funzioni sanitarie, facilitando riconversioni rapide e ottimizzando l’investimento pubblico. Gli ambulatori, ad esempio, seguono un layout standardizzato con dotazioni funzionali (lavabo, aperture per ventilazione naturale, illuminazione diretta), che ne consentono l’utilizzo trasversale.
Le camere di degenza, invece, sono strutturate come moduli singoli accoppiati con bagno condiviso, un sistema che bilancia privacy individuale e gestione efficiente delle risorse. La distribuzione ad anello del Blocco A favorisce il controllo centralizzato da parte del personale sanitario, migliorando i tempi di risposta e garantendo riservatezza per i pazienti, grazie anche alla presenza di un patio centrale che illumina e arieggia naturalmente gli ambienti interni.
Reception

Umanizzazione degli Spazi
Il progetto della struttura sanitaria di Melegnano pone particolare attenzione al benessere psico-fisico del paziente attraverso scelte architettoniche mirate. Il rapporto diretto con il verde del patio interno, su cui si affacciano molte delle stanze di degenza, contribuisce a creare un ambiente accogliente, luminoso e arieggiato, in linea con i più moderni approcci alla cura e alla convalescenza.
Ogni spazio è pensato per promuovere la serenità: dai percorsi fluidi e intuitivi alla centralizzazione delle postazioni di controllo, fino alla scelta dei materiali e all’organizzazione dei volumi. Il comfort non è solo un valore aggiunto, ma un elemento essenziale dell’intervento architettonico, capace di influenzare positivamente il processo di guarigione e migliorare l’esperienza complessiva del ricovero.

Sala d'attesa
Casa della Comunità e Ospedale della Comunità - Melegnano (MI)
Macrodiscipline
Architettura
Ingegneria
BIM
Cliente
ASST Melegnano e Martesana
Ambito
Socio-Sanitario
Anno
2023-2025
Dimensioni
930 mq Blocco A – 1330 mq Blocco B
Piani
n. 1 Blocco A, n. 3 Blocco B
Località
Melegnano (MI)
Servizi
PFTE e Progettazione esecutiva
Stato
Complete
Importo
12.000.000
Galleria progetto
Altri progetti






