
Casa della Salute - Bologna
Proposta di gara per una Nuova Casa di Comunità a Bologna
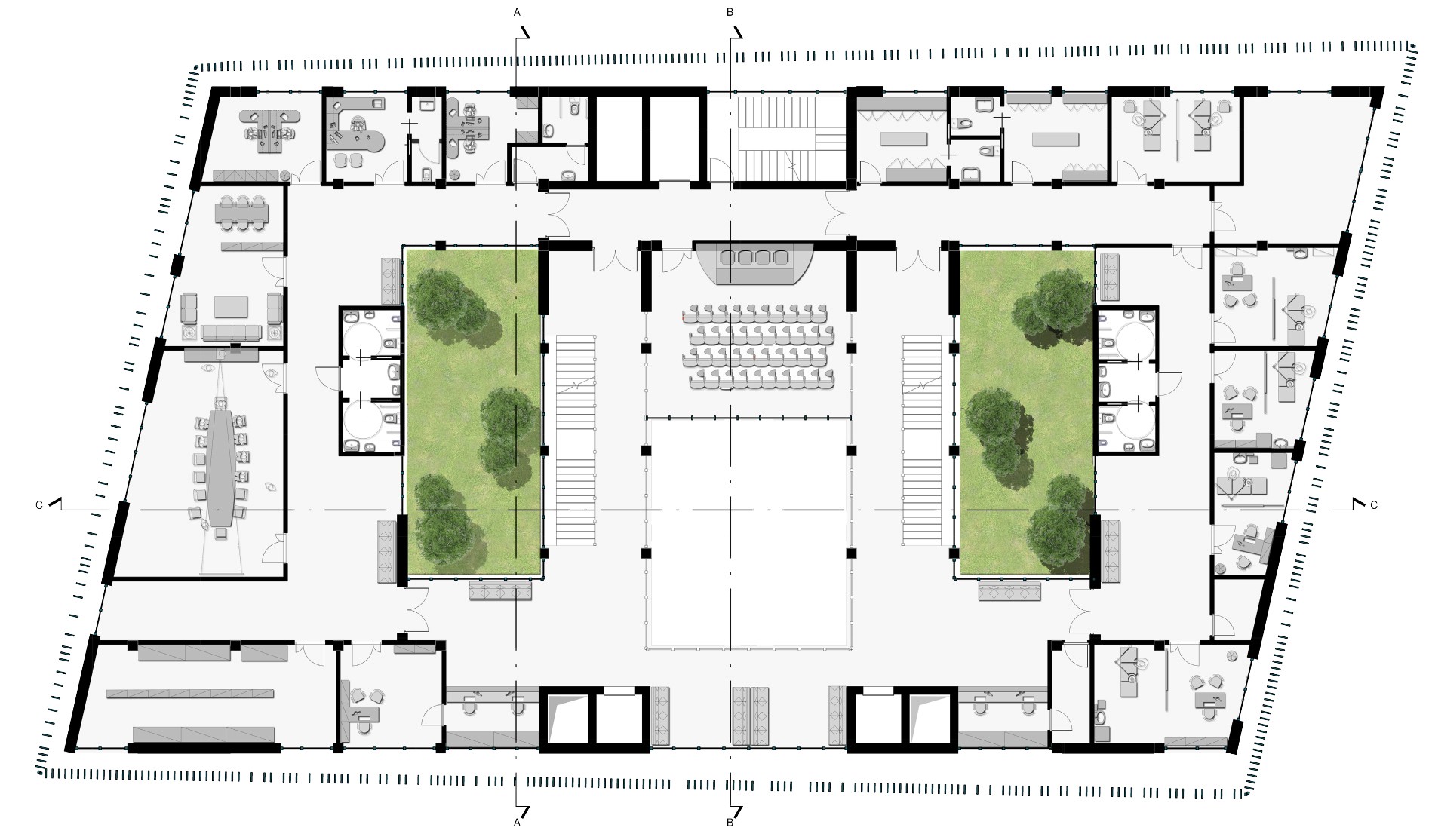
La proposta progettuale prevede un edificio compatto, conformato secondo la geometria irregolare del lotto, di forma quadrilatera e tendenzialmente a parallelogramma. L’organismo edilizio si articola attorno a corti interne ed è distribuito su quattro livelli fuori terra e un piano interrato.
In fase preliminare è stata condotta un’analisi delle connessioni tra il lotto e il contesto urbano, con l’obiettivo di garantire un’accessibilità completa e inclusiva, sia per i pedoni che per i mezzi di trasporto (autobus, automobili, biciclette). I flussi sono stati organizzati in modo da separare nettamente gli accessi del personale, dei pazienti e delle merci, ottimizzando la funzionalità e la sicurezza degli spazi. È prevista la realizzazione di parcheggi sia a raso che interrati, al fine di massimizzare l’efficienza dell’utilizzo delle superfici disponibili.
La copertura verde, insieme alle corti interne piantumate, contribuisce a mitigare l’impatto visivo e ambientale del nuovo edificio, assicurando al contempo una dotazione adeguata di spazi verdi a beneficio degli utenti.
RTP: Studio Plicchi, Main, Studio Parenti, Airis, No Gap Controls
Pianta tipo - primo piano

La progettazione è stata guidata da una macro-suddivisione funzionale, composta da area pubblica, area staff e area clinica, distribuite sui vari livelli secondo una logica di ''intensità di cura'' crescente ma anche basata su principi di modularità e flessibilità.
Al piano terra sono presenti le funzioni più pubbliche e amministrative, mentre salendo troviamo ambulatori sempre più specializzati. Ogni piano è dotato di uno spazio di accoglienza e di servizi igienici, gender free e posizionati in egual misura e posizione su tutti i livelli.
La facciata rimarca il concetto di modularità: le aperture, vetrate a tutt'altezza, hanno un passo regolare, mentre il brisesoleil crea una schermatura e un gioco di luci e ombre, diversificato in base all'orientamento. Questo sistema, proposto in diversi toni del color mattone come omaggio alla tradizione bolognese, è interrotto da alcuni elementi di colore verde, in linea con le case della comunità sul territorio bolognese. Su ogni livello e in base alle necessità o meno di schermare i raggi solari, questi elementi si infittiscono e/o si allontanano dalla facciata, creando su ogni piano un perimetro diverso e conferendo ulteriore dinamicità ai volumi. In versione serale, questi elementi prendono vita grazie alla presenza di led colorati che creano un gioco dinamico e divertente.
Sezione prospettica

Casa della Salute - Bologna
Macrodiscipline
Architettura
Cliente
Azienda USL di Bologna
Ambito
Socio-Sanitario
Anno
2020
Dimensioni
Sup. lotto 2500 mq, Sup. utile 3750 mq
Piani
n. 1 interrato, n. 4 fuori terra
Località
Bologna
Servizi
Gara di ingegneria
Stato
Idea
Importo
3.120.000
Galleria progetto
Altri progetti












