
Centro Civico – Funo di Argelato (BO)
Progetto di riqualificazione degli spazi del Centro Civico di Funo di Argelato
L'obiettivo di intervento è la rigenerazione degli spazi del Centro Civico di Funo, quale luogo che consente di potenziare e riorganizzare i servizi offerti sul territorio migliorandone la qualità.
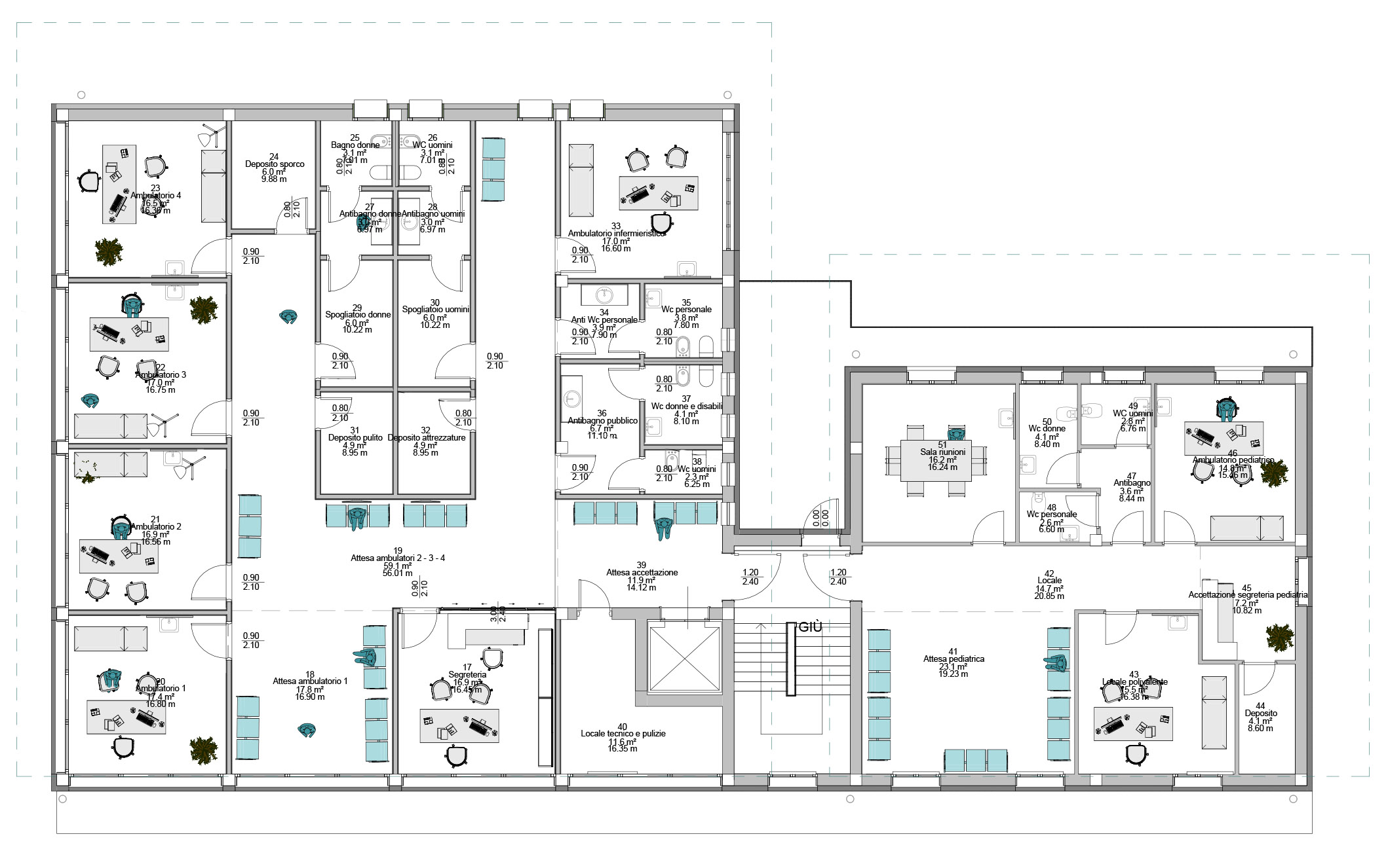
Il centro presenta al piano terra l'URP e la Farmacia comunale, mentre il piano primo, cuore del progetto, vedrà la presenza di sei ambulatori. Questi spazi sono stati pensati secondo criteri di flessibilità e modularità, per poter assumere in futuro altre funzioni.
Il progetto comprende la riqualificazione energetica e la sistemazione delle aree esterne, per valorizzare questo importante punto di riferimento per la popolazione locale e incrementare la qualità dei servizi offerti. Il risultato è un masterplan lineare, poco invasivo e collegato agli accessi pedonali esistenti, senza stravolgere quindi la viabilità.
Masterplan

La posizione di questo fabbricato lo rende uno snodo e punto di riferimento ideale per la cittadinanza in quanto si trova nelle immediate vicinanze alla stazione Funo - Centergross e della via Galleria.
L'edificio è luminoso e arioso: tutti gli spazi interni, compresi i servizi igienici ed esclusi i depositi e i locali tecnici, sono dotati di una finestra di dimensioni adeguate. In particolare l’area ambulatoriale è dotata di grandi aperture che rendono gli ambienti connessi con l’ambiente esterno e molto luminosi. Gli ingressi sono tutti vetrati e le aree di attesa sono sempre dotate di aperture che rendono l’ambiente piacevole e confortevole.
Gli infissi sono in alluminio a taglio termico di colore testa di moro, al fine di conferire un aspetto contemporaneo all’edificio. Le imbotti delle finestre sono previsti anch’esse di colore testa di moro, caratterizzando le aperture uniforme sul solaio.
Internamente, le finiture sono state selezionate creando una palette sui toni del bianco e del color ottanio.
Ogni ambulatorio è stato pensato per accogliere una parete mobile che sapari la zona di colloquio da quella di svestizione del paziente, e il lettino non è mai posto davanti alla finestra; queste scelte mirano a garantire la giusta privacy.
Pianta piano primo

Centro Civico – Funo di Argelato (BO)
Macrodiscipline
Architettura
Ingegneria
Cantiere
Cliente
Comune di Argelato
Ambito
Socio-Sanitario
Anno
2022-2025
Dimensioni
500 mq
Piani
n°1 x Blocco A, n° 3 x Blocco B
Località
Funo di Argelato
Servizi
Progetto Definitivo, Progetto Esecutivo, Direzione Lavori
Stato
Complete
Importo
677.011,82
Galleria progetto
Altri progetti











