
Sede del Dipartimento di Psicologia del Campus di Cesena (FC)
Realizzazione della nuova sede destinata alle esigenze del Dipartimento di Psicologia e degli uffici amministrativi dell’area di Campus di Cesena – area ex zuccherificio -Unità di intervento 6 – Cesena (FC)
Il progetto, interamente ingegnerizzato in BIM, prevede la realizzazione di un nuovo Campus dedicato alla facoltà di Psicologia.
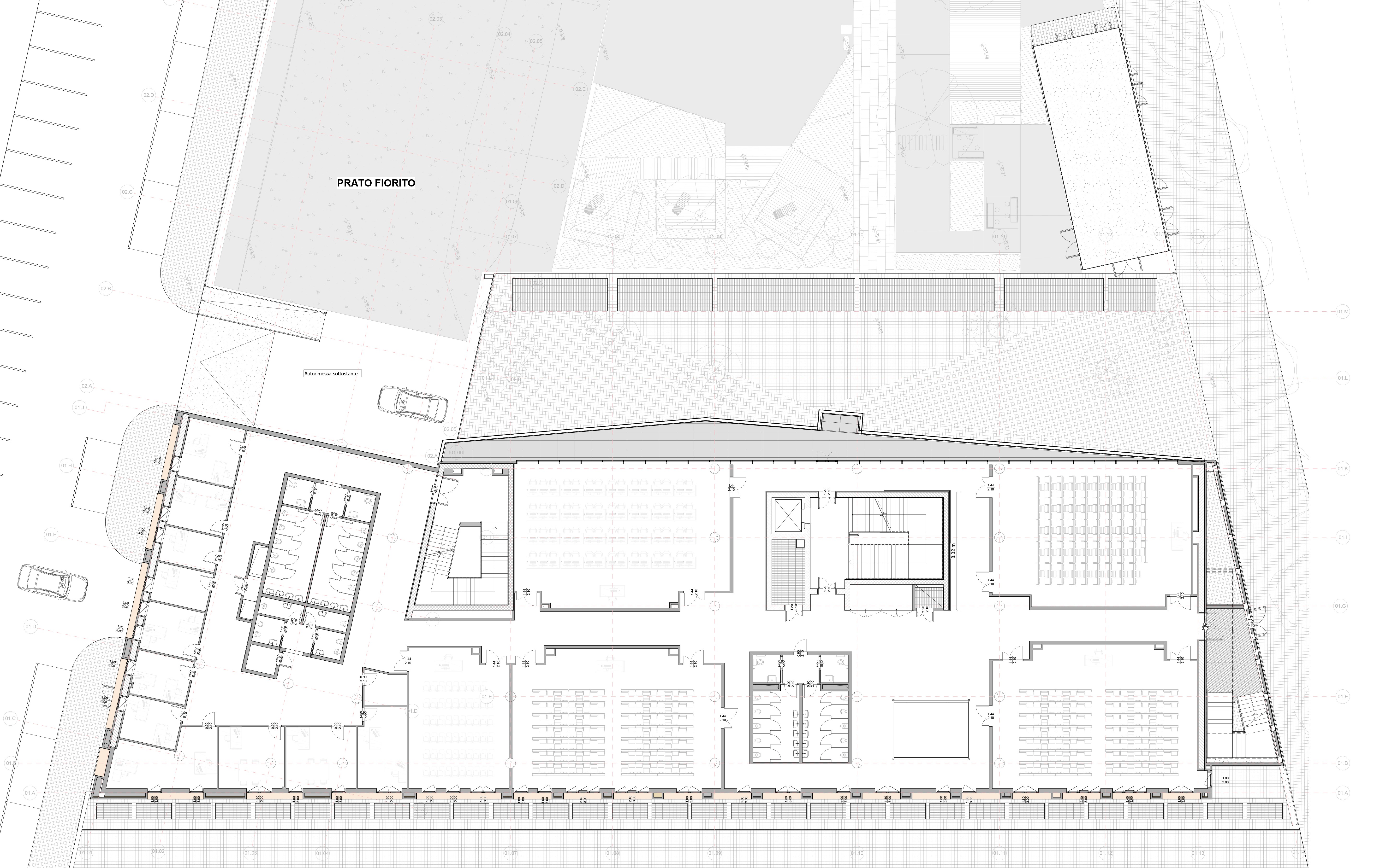
Il piano terra, adibito in parte ad uffici/segreteria e in parte a funzioni didattiche, presenta due fronti di accesso, a nord dal parco e a sud dalla esistente piazza Sciascia.
Al piano primo sono collocate quattro aule didattiche con capienze dai 100 ai 200 posti, e un laboratorio informatico. Nell’ala ovest si trovano altri uffici amministrativi del Campus. Una terrazza esterna, che si affaccia verso il giardino a Nord, è accessibile da due aule e dal connettivo principale.
Al piano secondo trovano collocazione gli studi dei docenti afferenti al dipartimento di psicologia. Il terzo e ultimo piano vede l’accesso alla copertura, prettamente impiantistica (UTA, fotovoltaico) dal vano scala centrale. Per mitigare la presenza degli impianti soprattutto sui fronti nord ed est, sono previste delle schermature verdi e lamiere stirate.
Infine, Il piano interrato è dedicato principalmente all’autorimessa, per un totale di n. 68 posti auto, di cui n. 4 per disabili e vede la presenza di sistemi di raccolta e deflusso delle acque piovane.
RTP: Main, Deerns. Consulenti: Ceccoli Associati, B Scape
Pianta tipo - piano primo

Dialogo stilistico con il contesto
L'architettura dell'edificio prevede una serie di elementi emblematici della volontà dell'Ateneo di realizzare un edificio accattivante, durevole nel tempo e ben integrato nel contesto, caratterizzato da una forte identità in linea con il Campus di Cesena e con l'Unibo.
Le facciate, fortemente identitarie, risultano caratterizzate dalla compresenza di gres grande formato e mattoni. In particolare il mattone esalta l'ingresso e il piano terra, leggermente arretrato rispetto ai piani superiori e i corpi scala, mentre l'alzato risulta più austero, omogeneo e luminoso grazie al gres. Le nicchie in alzato, che ospitano finestre di diverse dimensioni, conferiscono dinamismo e smorzano la volumetria compatta dell'edificio.
Prospetto Nord - lato parco

Osmosi verde
Il progetto delle aree esterne, così come proposto in gara e come ingegnerizzato in seguito, si pone due obiettivi principali: dotare il nuovo edificio di un ambiente esterno ricco, stimolante e piacevole e mettere in atto una strategia di connessioni urbane che rendano l'area aperta alle opportunità offerte dal territorio circostante.
Il verde diventa un elemento di valore e si arricchisce di nuove funzioni, vivibili e non meramente decorative: postazioni di supporto psicologico, un chiosco, varie sedute e box ricreativi si innestano fra le varie essenze diventando naturalmente parte di un unico sistema. Seguendo questo principio, il verde accompagna il percorso dello studente anche all'interno: il vano scala ‘’centrale’’ al piano terra e primo, avrà un rivestimento in verde stabilizzato, per mantenere un dialogo con il giardino.

Proposta di gara - Progetto del verde
Sede del Dipartimento di Psicologia del Campus di Cesena (FC)
Macrodiscipline
Architettura
Ingegneria
BIM
Cliente
Alma Mater Studiorum, Università di Bologna
Ambito
Istruzione e Ricerca
Anno
2023-2024
Dimensioni
Edificio 5761,86 mq, aree esterne 4083,61 mq
Piani
n. 1 interrato, n. 3 fuori terra
Località
Cesena (FC)
Servizi
Progettazione esecutiva in appalto integrato
Stato
Construction
Importo
15.256.012,42
Galleria progetto
Altri progetti












