
Stabulari per l’Istituto Zooprofilattico Sperimentale della Lombardia e dell’Emilia Romagna IZSLER – Brescia
Intervento di ristrutturazione e nuova costruzione di stabulari ed edifici sperimentali ad elevata complessità, BSL3 e BSL4
L’obiettivo è quello di realizzare un complesso di nuovi edifici che possano dare prestigio all’Istituto Zooprofilattico in quanto centro di riferimento per la sperimentazione animale in BSL4 e per l’allevamento animale: un intervento organico, composto da tre edifici innovativi dal punto di vista funzionale ma anche architettonico, che possa diventare per l’Istituto e per la città di Brescia un simbolo di ricerca scientifica rinomato a livello nazionale e anche oltre. Attualmente infatti, in Europa, laboratori BSL4 sono presenti solo in Germania e Regno Unito.
Per raggiungere questo obiettivo, oltre a curare l’efficienza funzionale degli edifici attraverso flussi sicuri e locali adeguati dal punto di vista dimensionale e tecnologico, è stato affidato ad ogni edificio un colore in base alla propria funzione, per conferire a questi edifici un’identità e una riconoscibilità.
Gli edifici sono separati e non comunicanti: questa scelta è dovuta alla necessità di isolare l’edificio in BSL4, in quanto al suo interno vengono trattate sostanze con elevato potenziale di contaminazione. Tuttavia fanno parte di un unico organismo architettonico grazie alle aree esterne e alla copertura, che diventa un elemento di caratterizzazione architettonica e paesaggistica, oltre che di schermatura e fonte di energia sostenibile.
RTP: 3TI, Main, Seingim
Masterplan

Edificio A - BSL4
Questo edificio sarà destinato a laboratori di stabulazione per grandi e piccoli animali e costituirà la porzione a più elevata tecnologia dell’Istituto: gli stabulari e le stalle ivi presenti saranno di un livello di biosicurezza BSL4, attualmente il livello più alto.
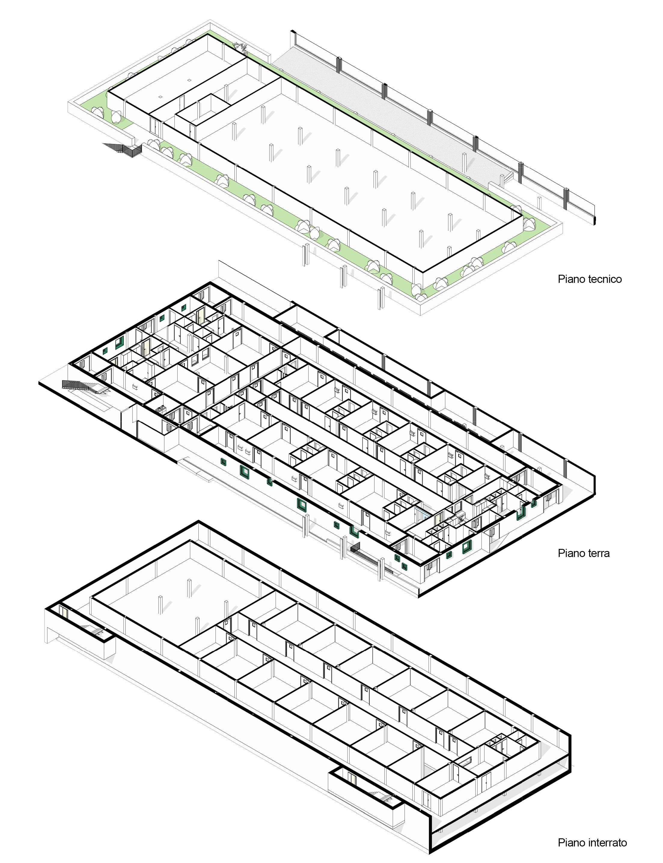
La richiesta di realizzare dei laboratori ad un elevato livello di biosicurezza, risiede nell’esigenza di poter svolgere più sperimentazioni contemporaneamente senza il rischio di contaminazione, essendo, con questo metodo, ogni laboratorio isolato rispetto agli altri. L'edificio prevede un piano interrato interamente dedicato alla raccolta reflui; un piano terra destinato a stalle e stabulari, di cui tre per piccoli animali e sette per grandi animali e un piano tecnico superiore.
Fondamentale lo studio della compartimentazione, al fine di permettere all’operatore di potersi spostare da uno spazio all’altro senza rischio di contaminazione, che dovrà avvenire con sistemi a pressione decrescente man mano che ci si avvicina all’area a maggior depressione. Per raggiungere questo obiettivo è stato necessario prevedere diversi gradienti di pressione decrescente verso lo spazio maggiormente contaminato con salti di pressione di circa 30 Pa tra ambienti confinanti.
Edificio A

Edifici B e C
L'edificio B, destinato alla stabulazione dei piccoli animai ed SPF, è composto da: un piano interrato tecnico; un piano terra dedicato all'allevamento dei polli SPF isolato dalle altre funzioni; un piano primo dedicato all'allevamento di roditori e munito di sala operatoria, e un piano secondo dedicato a funzioni pubbliche e amministrative (uffici, sala congressi e aula studio.
Su questo secondo livello i locali si affacciano attorno ad un grande patio verde centrale, mentre il distributivo è spostato sul perimetro, secondo la logica dei piani inferiori.
Per l'edificio C è prevista una manutenzione straordinaria che consiste nel ripristino delle finiture ammalorate e delle coperture.

Layout funzionale - Edificio B
Stabulari per l’Istituto Zooprofilattico Sperimentale della Lombardia e dell’Emilia Romagna IZSLER – Brescia
Macrodiscipline
Ingegneria
BIM
Cliente
Azienda Regionale per l’Innovazione e gli Acquisti spa (ARIA)
Ambito
Uso misto
Anno
2021
Dimensioni
58600 mq superficie territoriale, 2000 mq di ristrutturazione su 2 livelli, 1000 mq di sopraelevazione, 2000 mq di ampliamento su 3 livelli, sistemazioni esterne e aree parcheggio
Piani
n. 3 Edificio A, n. 4 Edificio B, n. 2 Edificio C
Località
Brescia
Servizi
Progetto di fattibilità tecnico-economica
Stato
Complete
Importo
24.110.030,64
Galleria progetto
Altri progetti












